Evoke
For Sale

Adamson

3/9 Adamson Street, Brighton

Beds 2

Baths 2.5

Cars 2

|

Price $2,900,000 - $3,100,000

Private Ground-Floor Prestige Metres from Church Street

A statement in refined luxury just metres from Church Street’s vibrant dining and shopping precinct, this quietly positioned architectural residence by award-winning developer McKimm delivers an exceptional ground-floor sanctuary where privacy and prestige coexist in perfect harmony. 

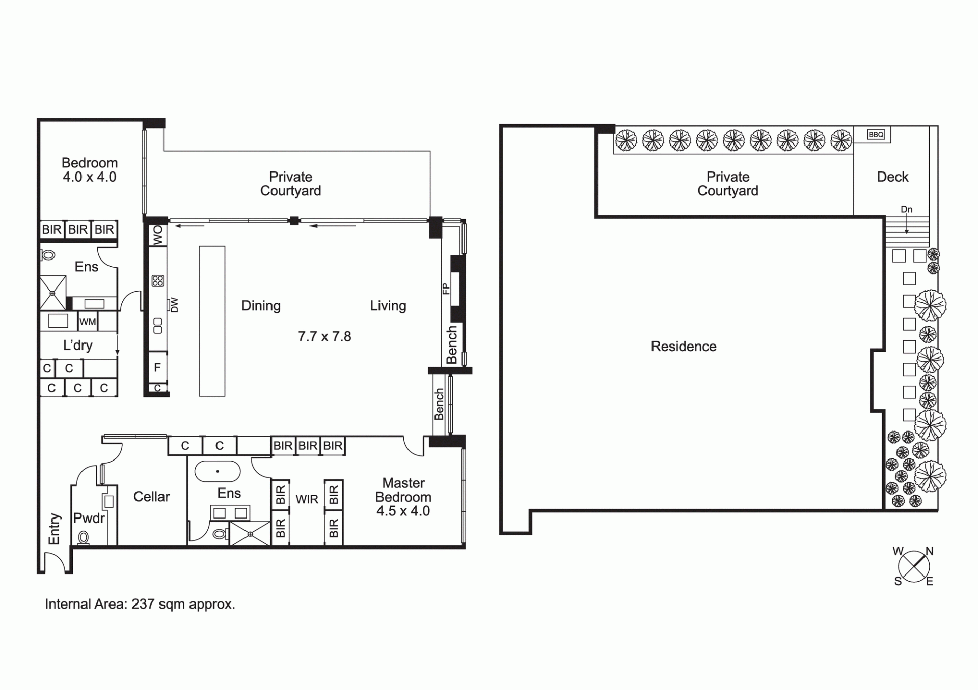
Occupying a beautifully sun-drenched north-western ground-floor position within the renowned Luce development, this sophisticated apartment is the epitome of indulgent living. An exquisite wraparound terrace embraces every room, creating a seamless indoor–outdoor connection and an idyllic setting for entertaining or unwinding amid serene garden seclusion.

Bathed in natural light, the expansive open-plan living and dining domain is anchored by a striking gas fireplace and framed by floor-to-ceiling glazing with sliding doors that extend to the alfresco retreat. Leafy garden vistas enhance the sense of tranquillity, while the gourmet kitchen impresses with thick natural stone benchtops, an oversized island with dining bar, and a full suite of integrated appliances including a Fisher & Paykel fridge/freezer, Miele dishwasher, Miele convection ovens, and Miele induction cooktop. Adding a rare layer of versatility, a striking glass-enclosed room offers a flexible space suited to a variety of uses, whether as a private home office, wine room, or bespoke retreat. Beautifully designed with independent climate control, it enhances both the functionality and sophistication of the home.

The sumptuous main bedroom suite enjoys private garden outlooks and features a fitted walk-in robe with extensive custom storage, alongside a luxurious fully tiled ensuite complete with a freestanding bath, rainfall shower, and underfloor heating. A second north-west-facing bedroom with built-in robes and its own ensuite continues the theme of comfort and refinement.

Premium finishes and appointments include oak flooring, 100% wool loop-pile carpet, soft-touch custom cabinetry, double glazing, automatic blinds with recessed sheers, and a full laundry with stone benchtops. Comfort is assured year-round with zoned reverse-cycle ducted heating and cooling.

Positioned in a quiet cul-de-sac on the edge of Church Street, this impeccable address places elite schools, city-bound trains, buses, and parklands within easy reach. Additional features include automated garden irrigation, a mains gas BBQ, secure basement parking for two vehicles, a storage cage, and intercom entry.

At a glance:

  • Near-new luxury ground-floor residence with expansive wraparound terrace
  • Prestigious Luce development by award-winning McKimm
  • North-west orientation with abundant natural light
  • Grand open-plan living with gas fireplace
  • Designer kitchen with premium integrated appliances
  • Glass wine room with zoned climate control
  • Luxurious main suite with freestanding bath and underfloor heating
  • Second ensuite bedroom with built-in robes
  • Oak floors and wool loop-pile carpets
  • Ducted zoned heating and cooling
  • Automated blinds and garden irrigation
  • Secure basement parking for two plus storage cage
  • Quiet cul-de-sac location metres from Church Street
Property TypeBuy

Sarah Jones

Sophie Gorring

Floorplan Statement of information

Get in touch to discuss Adamson today.

Sarah Jones

Call

Sophie Gorring

Call